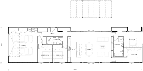
Hillary
Number of bedrooms
Bedrooms 4
Number of bathrooms
Bathrooms 2
Number of living spaces
Living spaces 1
Number of toilets
Toilets 2
Carport or Garage Size
Carport or Garage Size 2
Floor size:
193m²

The strong, clean lines of this contemporary four-bedroom home ensure it will be a standout on any street! Two separate bedroom wings make the Hillary a great choice as a holiday home, while the views from the open-plan living area and the family lounge mean you’ll always be able to appreciate your surroundings.

Features
  • Contemporary and efficient design
  • See-through living space
  • Feature built-in shelving and boot seat
  • Optional pergola

Related Plans

Hadlee Family Range 250m²

Number of bedrooms
5
Number of bathrooms
3
Number of Living Spaces
2
Carport or Garage Size
2

Sleek and architectural in its form, the Hadlee offers ultimate flexibility! Turn right in the entrance for a four-bedroom home complete with a large living space which enjoys views from either side. Or, turn left and be welcomed into a fully self-contained one-bedroom apartment with a good-sized kitchen and generously proportioned living area. Add a pergola for some contemporary outdoor living space.

View Plan