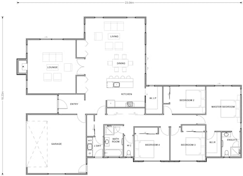
Mansfield

Mansfield
Number of bedrooms
Bedrooms 4
Number of bathrooms
Bathrooms 2
Number of offices
Offices 1
Number of living spaces
Living spaces 2
Number of toilets
Toilets 2
Carport or Garage Size
Carport or Garage Size 2
Floor size:
249m²

Those looking for more storage will instantly fall in love with the Mansfield, an executive home designed to be as practical as it is aesthetically pleasing. A study nook (with bi-folding doors) means you can watch the kids do their homework as you prepare dinner in the kitchen, while three linen/storage cupboards and a large walk-in pantry mean there’s no excuse for clutter!

Features
  • Generous storage
  • Feature fireplace in separate lounge
  • Convenient study/office nook

Related Plans

Deans Family Range 230m²

Number of bedrooms
4
Number of bathrooms
2
Number of Living Spaces
2
Carport or Garage Size
2

Designed with ultimate functionality in mind, this generously-proportioned home features expansive living areas which enjoy uninterrupted views across the backyard and garden. The central hub of the Deans is the designer kitchen, complete with large walk-in pantry.

View Plan

Smith Family Range 240m²

Number of bedrooms
4
Number of bathrooms
2
Number of Living Spaces
2
Carport or Garage Size
2

A true family-sized home with large wardrobes and loads of storage. The large open-plan living area offers plenty of scope for any occasion or circumstance, while the separate media room means there’s always somewhere to escape to watch your favourite show.

View Plan