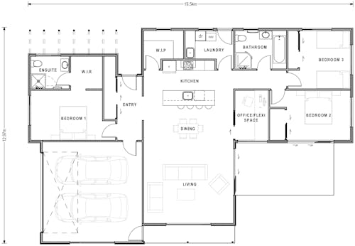
Seddon
Number of bedrooms
Bedrooms 3
Number of bathrooms
Bathrooms 2
Number of offices
Offices 1
Number of living spaces
Living spaces 1
Number of toilets
Toilets 2
Carport or Garage Size
Carport or Garage Size 2
Floor size:
187m²

Unapologetically modern in design, the Seddon features three generously-proportioned bedrooms and an office which overlooks the backyard and flows into the main living space. The master bedroom’s position at the front of the house means it’s sheltered from the hustle and bustle, while a large double garage offers plenty of additional storage.

Features
  • Private master suite
  • Generous double garage
  • Office/flexi space
  • Contemporary exterior and side entrance

Related Plans

Munro Family Range 220m²

Number of bedrooms
3
Number of bathrooms
2
Number of Living Spaces
2
Carport or Garage Size
2

There’s plenty of personality in the Munro, with exterior brick features and a large, raking ceiling in the living area lending the home a very architectural feel. The large kitchen is a budding gourmet’s dream come true, with its unique configuration allowing the cook to chat with those in the lounge while simultaneously enjoying the view outside.

View Plan

Hobson Family Range 223m²

Number of bedrooms
3
Number of bathrooms
2
Number of Living Spaces
1
Carport or Garage Size
2

Designed for those who value life’s little luxuries, the Hobson features a master bedroom which is accompanied by a fabulous ensuite and a large walk-in robe complete with make-up nook. The charming window seat is the icing on the cake – the perfect spot to sit back and watch the world go by.

View Plan