Ruapehu
Number of bedrooms
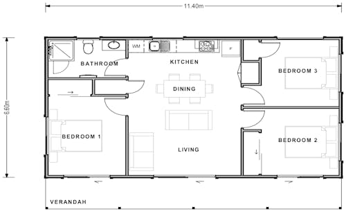
Bedrooms 3
Number of bathrooms
Bathrooms 1
Number of living spaces
Living spaces 1
Number of toilets
Toilets 1
Floor size:
75m²

Ticking all the boxes, the Ruapehu is tailor-made for holiday accommodation. There’s no wasted space here, with an all-in-one kitchen/laundry (with separate pantry cupboard) and a covered veranda where you can relax after a long day on the boat or an early start on the slopes.

Features
  • Efficient design
  • Veranda
  • Three bedrooms with wardrobes
  • Good storage

Related Plans

Matai Freedom Range 75m²

Number of bedrooms
2
Number of bathrooms
1
Number of Living Spaces
1

Perfectly at home on the lake, at the beach, or providing additional accommodation in the backyard, this cottage-style home boasts all the essentials, including a good-sized kitchen and generous wardrobe space.

View Plan

Kakapo Freedom Range 116m²

Number of bedrooms
3
Number of bathrooms
1
Number of Living Spaces
1

Perfect as a holiday home, investment property, or easy-care home for those looking to downsize, the Kakapo is both spacious and efficient. The streamlined kitchen, which overlooks the large dining and living areas, forms the hub of the home, while three good-sized bedrooms (including a master bedroom that enjoys direct access outside) offer ample accommodation.

View Plan

Clutha Lifestyle Range 85m²

Number of bedrooms
2
Number of bathrooms
1
Number of Living Spaces
1

Compact but fabulously practical, this lovely cottage offers the option of two or three bedrooms. If two will suffice the third space could easily become a separate dining area, a hobby room or an office – the choice is yours! Ideal as a holiday home, rental property or accommodation for extended family, it also includes a highly-functional kitchen.

View Plan