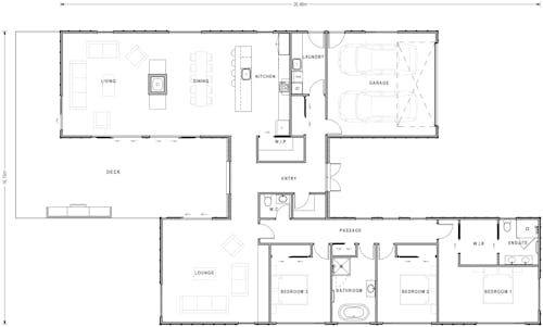
Tasman
Number of bedrooms
Bedrooms 3
Number of bathrooms
Bathrooms 2
Number of living spaces
Living spaces 2
Number of toilets
Toilets 2
Carport or Garage Size
Carport or Garage Size 2
Floor size:
269m²

The unique H-shaped design of the Tasman leaves no room untouched by the sun and creates a sheltered outdoor area which can be enjoyed all year round. A fabulous two-way fire separates the dining and living areas, while a generously-proportioned lounge means there’s always somewhere to retreat to watch your favourite movie.

Features
  • Modern designer home
  • Schist cladding
  • Chef’s kitchen
  • Feature fireplace

Related Plans

Parnell Metro Range 251m²

Number of bedrooms
4
Number of bathrooms
2
Number of Living Spaces
2
Carport or Garage Size
2

This executive family home boasts plenty of architectural style, including the stunning entrance way which greets visitors. Inside, four bedrooms (or three and an office/flexi space) offer ample accommodation, while a separate wing dedicated to the living areas means you can entertain all night without disturbing those who are sleeping.

View Plan