Number of bedrooms
Bedrooms 3
Number of bathrooms
Bathrooms 2
Number of living spaces
Living spaces 1
Number of toilets
Toilets 2
Carport or Garage Size
Carport or Garage Size 2
Floor size:
195m²

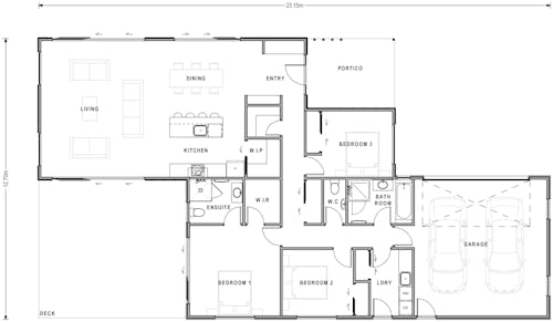
A feature portico draws you into this delightful double-pavilion home, designed with one wing to host the bedrooms and another to house the communal areas, including the large open-plan living space. Clutter will never be an issue in the Te Anau, with a butler’s pantry, a walk-in storage cupboard and a handy boot seat at the front door all helping to keep things orderly!

Features
  • Good storage
  • Feature entry portico
  • Side entry garage
  • Pavilion styling

Related Plans

Kenepuru Lifestyle Range 269m²

Number of bedrooms
4
Number of bathrooms
2
Number of Living Spaces
2
Carport or Garage Size
2

They say the kitchen is the heart of the home, and that's certainly true in the Kenepuru. From the large walk-in butler's pantry to the stacked windows which allow you to serve directly outside, every element of this gourmet's dream was designed to enhance the art of cooking. Boxed ceilings create character in the living areas, four large bedrooms provide ample accommodation, and an oversized garage (with room for the boat) adds to the appeal.

View Plan

Moeraki Lifestyle Range 212m²

Number of bedrooms
4
Number of bathrooms
2
Number of Living Spaces
2
Carport or Garage Size
2

Contemporary elegance and thoughtful functionality live side-by-side in the Moeraki, a four-bedroom home designed to capture the sun, and the views. No detail has been overlooked, with a downstairs toilet tucked under the stairs and smart storage solutions located on the upper level. 

View Plan