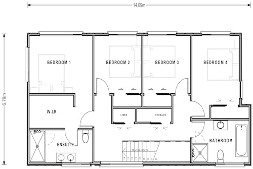
Anzac
Number of bedrooms
Bedrooms 4
Number of bathrooms
Bathrooms 2
Number of living spaces
Living spaces 2
Number of toilets
Toilets 3
Carport or Garage Size
Carport or Garage Size 2
Floor size:
271m²

Substantial and contemporary, this two-storey home represents executive living at its very best! Four good-sized bedrooms (including an expansive master suite) are complemented by stunning kitchen and bathroom spaces and a variety of versatile living areas.

Features
  • Large flexi space
  • Central kitchen
  • Double garage with additional storage

Related Plans

Oxford Metro Range 273m²

Number of bedrooms
4
Number of bathrooms
3
Number of Living Spaces
1
Carport or Garage Size
2

Spread over two levels, the Oxford is an expansive executive home that’s sure to impress! This contemporary family home features four bedrooms, including a guest bedroom – complete with its own facilities – on the ground floor. Generous living areas enjoy excellent views, while smart flexi-spaces offer plenty of versatility.

View Plan

Upham Family Range 342m²

Number of bedrooms
5
Number of bathrooms
3
Number of Living Spaces
3
Carport or Garage Size
3

The Upham is an impressive executive home with three living areas, four bedrooms, three-car garaging, and a self-contained guest wing with its own entrance – perfect for teens, older family members or to generate extra income.

View Plan

Batten Family Range 264m²

Number of bedrooms
5
Number of bathrooms
2
Number of Living Spaces
2
Carport or Garage Size
2

A generously-proportioned family home with flexi space for either a large office, guest room or fifth bedroom – the choice is yours. The modern open-plan living area and the separate media room offer plenty of versatility, while built-in shelving and lots of storage make it easy to maintain the home’s clean lines.

View Plan