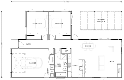
Baldwin
Number of bedrooms
Bedrooms 2
Number of bathrooms
Bathrooms 1
Number of living spaces
Living spaces 1
Number of toilets
Toilets 1
Carport or Garage Size
Carport or Garage Size 1
Floor size:
140m²

Functional, contemporary and unique, the Baldwin is a nod to the modern barn; a compact design with plenty of personality. This two-bedroom home is the perfect place to start your journey up the property ladder, with high ceilings in the living area and distinctive architectural elements lending the property a surprising sense of space.

Features
  • Contemporary exterior style
  • Oversize single garage with extra storage
  • Raking ceiling through living areas

Related Plans

Domain Metro Range 144m²

Number of bedrooms
3
Number of bathrooms
1
Number of Living Spaces
1
Carport or Garage Size
1

This compact home punches well above its weight, with three bedrooms, generous living spaces and a dual-access bathroom catering to a variety of living arrangements. The final piece of the puzzle is the over-sized single garage which offers plenty of additional storage space.

View Plan