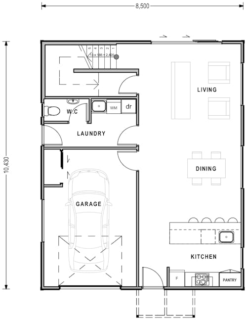
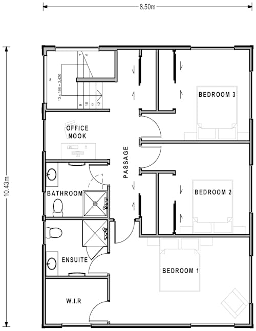
Dominion
- Number of bedrooms
- 3
- Number of bathrooms
- 2
- Number of offices
- 1
- Number of living spaces
- 1
- Number of toilets
- 3
- Carport or Garage Size
- 1
- Floor size:
- 177m²
Create your own funky industrial apartment with the Dominion! Behind the sleek, metal-clad exterior sits a light-filled stairwell, an expansive open-plan living area and three good-sized bedrooms. There’s also ample storage and a convenient office area/library nook.
 
         
                             
                            