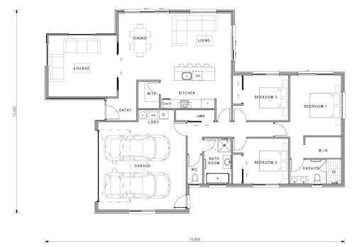
Gladstone

Gladstone
Number of bedrooms
Bedrooms 3
Number of bathrooms
Bathrooms 2
Number of living spaces
Living spaces 2
Number of toilets
Toilets 2
Carport or Garage Size
Carport or Garage Size 2
Floor size:
185m²

Whether you’re looking to downsize or aiming to establish yourself in your first home, you can’t go past the Gladstone! Thoughtfully-designed to complement smaller sites, the plan features three generous bedrooms, including a master with a luxurious ensuite (and huge walk-in shower!). Dual living areas provide plenty of options when entertaining, while excellent indoor/outdoor flow means you’ll always be able to make the most of those sunny days!

Features
  • Two living areas
  • Modern layout
  • Large ensuite with tiled walk-in shower
  • Contemporary exterior

Related plans

Finn Family Range 196m²

Number of bedrooms
3
Number of bathrooms
2
Number of Living Spaces
2
Carport or Garage Size
2

Family living has never been easier! Designed to deliver ultimate flexibility, the Finn features a large living/dining area, a well-positioned kitchen and three good-sized bedrooms. From there, the choice is yours – turn the extra flexi space into a second lounge, set-up a home office, or evolve it into a fourth bedroom as your family grows. However you decide to proceed, one thing’s for sure - this is a home that will serve you well for years to come!

View Plan

High Metro Range 178m²

Number of bedrooms
3
Number of bathrooms
2
Number of Living Spaces
1
Carport or Garage Size
2

You’ll fall heads-over-heels for the High, a compact design with plenty of traditional charm and loads of contemporary features. There’s lots to love inside, including a luxurious master bedroom (with walk-in robe and ensuite), a study nook and a fabulous feature bay window. If you really want to dial-up the character you could choose exterior cladding and detailing inspired by the classic Kiwi villa – it’s really up to you!

View Plan

Mansfield Family Range 249m²

Number of bedrooms
4
Number of bathrooms
2
Number of Living Spaces
2
Number of offices
1
Carport or Garage Size
2

Those looking for more storage will instantly fall in love with the Mansfield, an executive home designed to be as practical as it is aesthetically pleasing. A study nook (with bi-folding doors) means you can watch the kids do their homework as you prepare dinner in the kitchen, while three linen/storage cupboards and a large walk-in pantry mean there’s no excuse for clutter!

View Plan

Kiwi Freedom Range 208m²

Number of bedrooms
4
Number of bathrooms
2
Number of Living Spaces
2
Carport or Garage Size
2

Perfectly positioned for sun and natural light, the Kiwi is ideal for growing families, with two separate living areas ensuring there’s space to relax and unwind, and space to cut loose and make noise!

View Plan