Newmarket

Newmarket
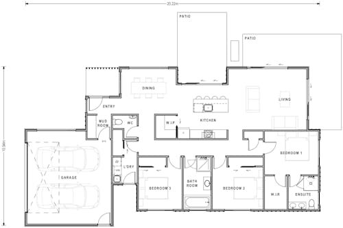
Number of bedrooms
Bedrooms 3
Number of bathrooms
Bathrooms 2
Number of living spaces
Living spaces 1
Number of toilets
Toilets 2
Carport or Garage Size
Carport or Garage Size 2
Floor size:
175m²

Cooking, eating and relaxation spaces are all clearly defined in the Newmarket, while excellent indoor/outdoor flow ensures you’ll always feel a connection to your surroundings. The icing on the cake is the mudroom – the perfect place to hang school bags, dump work gear and store shoes as you pass through from the large double garage.

Features
  • Good outdoor connection
  • Boot-seat/mudroom
  • Separate laundry

Related Plans

Ruru Freedom Range 178m²

Number of bedrooms
3
Number of bathrooms
2
Number of Living Spaces
1
Number of offices
1
Carport or Garage Size
2

A smart, contemporary home with masses of street appeal. The heart of this home is undoubtedly the kitchen, with exterior sliders opposite the island bench allowing you to chat to guests out on the deck while you whip up your culinary masterpieces!

View Plan