Ponsonby

Ponsonby
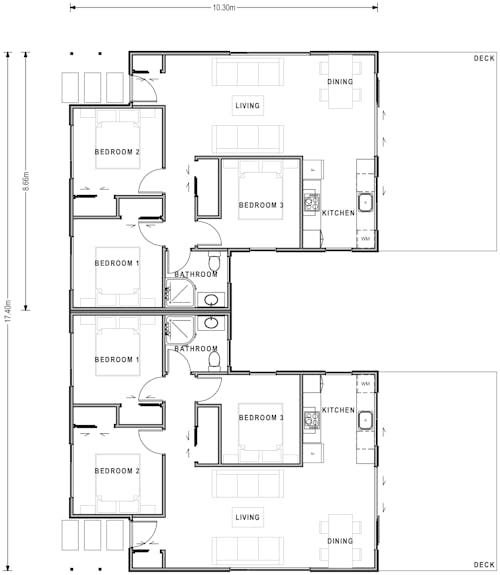
Number of bedrooms
Bedrooms 3
Number of bathrooms
Bathrooms 1
Number of living spaces
Living spaces 1
Number of toilets
Toilets 1
Floor size:
76m²

With two bedrooms and an office (or three bedrooms) the Ponsonby offers plenty of flexibility and the option to duplex for investment. The galley kitchen is instantly appealing, while seamless indoor/outdoor flow means alfresco dining is always an option.

Features
  • Galley kitchen
  • Flexi space office or bedroom
  • Option to duplex
  • Add a garage or carport

Related Plans

Cuba Metro Range 175m²

Number of bedrooms
3
Number of bathrooms
2
Number of Living Spaces
1
Carport or Garage Size
2

From the minimalist interior to the raking ceiling in the spacious living area, the architectural influence is strong in this contemporary, pavilion-style home. Three equal-size bedrooms and a large family bathroom add further appeal.

View Plan

Wilson Metro Range 280m²

Number of bedrooms
4
Number of bathrooms
2
Number of Living Spaces
2
Carport or Garage Size
2

There’s a real Kiwi feel about the Wilson, with its barn-inspired form making it perfect for both country or city environments. Spread over two levels, this contemporary home features three large bedrooms, including a luxurious master suite. Downstairs, the fabulous kitchen is complemented by generous open-plan living spaces and a separate lounge/media room, with built-in shelving adding to the functionality.

View Plan