Tay
Number of bedrooms
Bedrooms 4
Number of bathrooms
Bathrooms 2
Number of living spaces
Living spaces 3
Number of toilets
Toilets 3
Carport or Garage Size
Carport or Garage Size 2
Floor size:
284m²

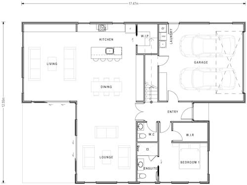
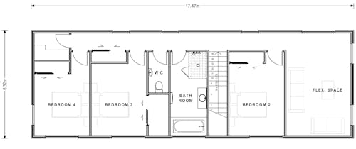
There’s a nod to retro architecture in the design of the Tay, a resplendently modern two-level home defined by clever flow and sleek minimalist styling. A downstairs master suite and a large flexi-space upstairs ensure the home can evolve as the needs of you and your family do likewise, while excellent indoor/outdoor flow promotes a strong connection to your surroundings.

Features
  • Flexi-space
  • Built-in shelving and storage
  • Townhouse duplex option

Related plans

King Metro Range 163m²

Number of bedrooms
3
Number of bathrooms
2
Number of Living Spaces
1
Carport or Garage Size
2

With its contemporary exterior and its timeless design, the King really does offer the best of both worlds. The intelligent layout includes a sun-soaked kitchen/dining space which opens on to a fabulous outdoor entertaining area, with the cosy window seat just one of many lovely little touches. Of course, there’s also ample storage, a separate laundry, and a double garage!

View Plan

Parnell Metro Range 251m²

Number of bedrooms
4
Number of bathrooms
2
Number of Living Spaces
2
Carport or Garage Size
2

This executive family home boasts plenty of architectural style, including the stunning entrance way which greets visitors. Inside, four bedrooms (or three and an office/flexi space) offer ample accommodation, while a separate wing dedicated to the living areas means you can entertain all night without disturbing those who are sleeping.

View Plan