Porirua — Aotea
- Number of bedrooms
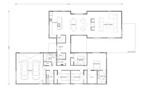
- 4
- Number of bathrooms
- 2
- Number of living spaces
- 1
- Number of toilets
- 2
- Carport or Garage Size
- 2
- Floor size:
- 251m²
- Price
- From $1,200,000
Versatile proudly offer the Parnell plan from our Metro range as a part of a house and land package in Aotea.
This package is not linked to any specific section in Aotea, but can be utilised on a range of sections currently available for sale up to the value of $400,000 (Based on the overall package price)
Features and Inclusions:
- Complete 100% Project managed build
- Sealed exposed aggregate driveway and entry path
- Niagra decking for indoor/outdoor flow & living
- Landscaped section & hydro seeded lawns
- Custom made curtains, drapes & blinds
- High quality Kitchen fit out and appliances
- Carpet and tiled flooring
- Rockcote Integra cladding with feature ceder
- Professional decor & colour scheme throughout
- 10 year Registered Master Builders guarantee
- 12 months maintenance and defects warranty
- 20 week build time from placement of the RibRaft foundations
 
         
            