Raglan — Rangitahi Peninsula
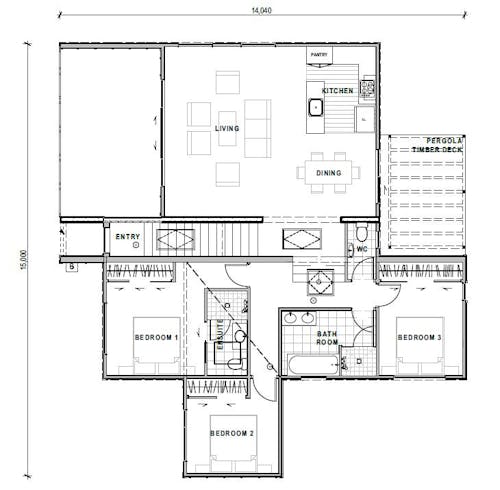
- Number of bedrooms
- 3
- Number of bathrooms
- 2
- Number of living spaces
- 1
- Number of toilets
- 2
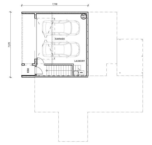
- Carport or Garage Size
- 2
- Floor size:
- 183m²
- Section size:
- 450m²
- Price
- Price By Negotiation
RANGITAHI PENSINSULA LOT 167
Don’t miss this once in a lifetime opportunity to own a custom-designed home in the heart of the Rangitahi Peninsula second stage “The Retreat”. Closely connected to Precinct A via walkways and recreational green spaces, The Retreat offers the dream coastal lifestyle with waterfront sections overlooking the inner harbour, Mount Karioi, and the Raglan golf course.
* 4 BEDROOM OPTIONS AVAILABLE
* FINAL DESIGN IS SUBJECT TO THE RANGITAHI DESIGN REVIEW PANEL
CONTACT: Ian Ridgway 027 476 0117 or iridgway@versatile.co.nz
Lot 167, Rangitahi Peninsula, Raglan Get directions 
         
            