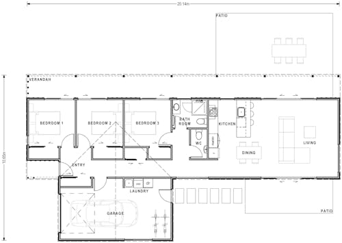
Geraldine — Lot 38, Strawberry Place
- Number of bedrooms
- 3
- Number of bathrooms
- 1
- Number of living spaces
- 1
- Number of toilets
- 1
- Carport or Garage Size
- 1
- Floor size:
- 131m²
- Price
- From $495,000
Bathed in natural light and exuding a warm and welcoming ambience, this lovely home features a living area that captures three different views and offers two distinct outdoor living options.
Call Eddie Skillander today:
P: 03 688 2090
M: 022 319 8203
E: eddie.skillander@versatile.co.nz
 
         
                             
            