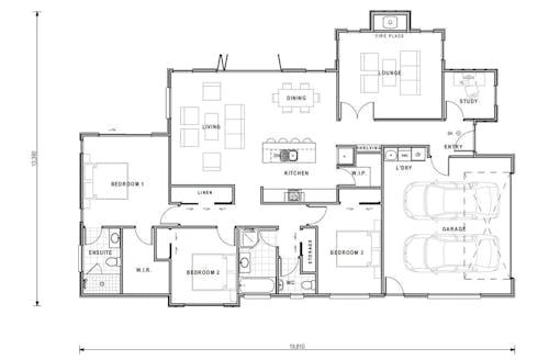
Tauranga — Lot 5, Kennedy Views
- Number of bedrooms
- 3
- Number of bathrooms
- 2
- Number of offices
- 1
- Number of living spaces
- 2
- Number of toilets
- 2
- Carport or Garage Size
- 2
- Floor size:
- 202m²
- Section size:
- 495m²
- Price
- From $799,000
An elegant, executive home offering plenty of space, and plenty of versatility! Three bedrooms are complemented by a separate office, conveniently located by the front door to enhance work-from-home opportunities. Bi-fold doors provide seamless indoor/outdoor flow from the main living area and ensure alfresco dining will be a regular event in summer, while the cosy lounge – complete with fireplace – is the perfect place to curl up in front of a movie during the winter months.
Price includes:
- Boundary fencing,
- Fujitsu heat pump,
- Fisher & Paykel appliances,
- Carpet, planking, tiles,
- Yellowfox interior design service,
- A construction Project Manager throughout the entire build,
- And a 10 year Registered Master Builder guarantee
Land Area: 495sqm
**this price does not include any retaining of the site**
Lot 5 Kennedy Views, Pyes Pa, Tauranga Get directions 
         
                             
            