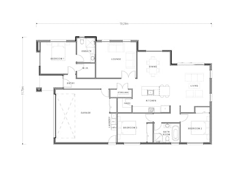
Palmerston North — Lot 517, Atlantic Drive
- Number of bedrooms
- 3
- Number of bathrooms
- 2
- Number of living spaces
- 2
- Number of toilets
- 2
- Carport or Garage Size
- 2
- Floor size:
- 190m²
- Section size:
- 701m²
- Price
- $699,000
Brand new home to be built. Literally move in and enjoy your new home. No additional costs as driveways, fencing and lawns will be included in the package.
One of two designs for this section.
 
         
                             
            