Pokeno — Pokeno Village Estate

Pokeno Village Estate
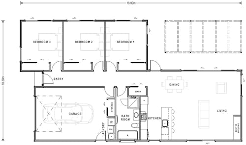
Number of bedrooms
Bedrooms 3
Number of bathrooms
Bathrooms 1
Number of living spaces
Living spaces 1
Number of toilets
Toilets 1
Carport or Garage Size
Carport or Garage Size 1
Floor size:
154m²
Price
From $660,100

Versatile Pukekohe proudly offer the Cuba plan from our Metro range as part of a generic house and land package in the Pokeno Village Estate. 

This package is not linked to any specific section in Pokeno but can be utilised on a range of sections currently available for sale up to the value of $285,000.00 (based on the overall package price). 

Versatile Pukekohe are able to offer you a variety of sections within the Pokeno Village Estate, we will negotiate on your behalf, to secure the section of your choice. 

Included in offer :- 
• Complete 100% project managed build 
• Final fixed price – no allowances 
• Driveway and lawns prepared 
• High quality “Mastercraft” kitchen including appliances 
• Carpet and vinyl planking / tiles 
• Heatpump 
• Building Consent 
• Professional colour consult 
• Health and safety 
• 10 year Registered Masterbuilders guarantee 
• 12 months maintenance and defects warranty 

Pokeno Village Estate

Excluded in offer (but can be included):- 

• Any retaining walls as may be required for a specific site 
• Decking - timber or concrete 
• Curtains and blinds 
• Fencing 

Should this plan not suit your requirements or lifestyle, at Versatile we have a number of other plan options, or we can complimentary custom design a home for you. 

Or you might like us to build this home on your own section. 

Please contact Bridget Sutton at Versatile, Pukekohe 

P: 09 238 0696 
M: 021 286 8345 
E: bsutton@versatile.co.nz 

Or visit our office at 222 Manukau Road, Pukekohe or our show home at 54 Hillpark Drive, Pokeno, Saturday or Sunday 11.30 – 4pm or at any other time by appointment

View more house and land packages

Pokeno – Pokeno Village Estate From $745,700

House - Metro Range Newmarket

Newmarket plan 175m²

Number of bedrooms
3
Number of bathrooms
2
Number of Living Spaces
1
Carport or Garage Size
2

Versatile Pukekohe proudly offer the Newmarket plan from our Metro range as part of a generic house and land package in the Pokeno Village Estate. 

This package is not linked to any specific section in Pokeno but can be utilised on a range of sections currently available for sale up to the value of $285,000.00 (based on the overall package price). 

Versatile Pukekohe are able to offer you a variety of sections within the Pokeno Village Estate, we will negotiate on your behalf, to secure the section of your choice. 

Included in offer :- 
• Complete 100% project managed build 
• Final fixed price – no allowances 
• Driveway and lawns prepared 
• High quality “Mastercraft” kitchen including appliances 
• Carpet and vinyl planking / tiles 
• Heatpump 
• Building Consent 
• Professional colour consult 
• Health and safety 
• 10 year Registered Masterbuilders guarantee 
• 12 months maintenance and defects warranty 

More

Timaru – 35a Regent Street, Timaru $455,000

18 05 26 Versatile Fantail 001

West End Magic 68m²

Number of bedrooms
3
Number of bathrooms
1
Number of Living Spaces
1

In the heart of Timaru, find your next home or two! 

More