Pokeno — Pokeno Village Estate

Pokeno Village Estate
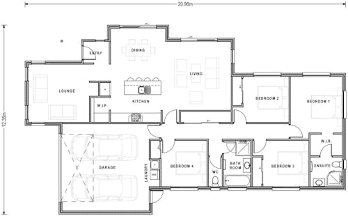
Number of bedrooms
Bedrooms 4
Number of bathrooms
Bathrooms 2
Number of living spaces
Living spaces 2
Number of toilets
Toilets 2
Carport or Garage Size
Carport or Garage Size 2
Floor size:
189m²
Price
From $699,500

Versatile Pukekohe proudly offer the McLaren plan from our Family range as part of a generic house and land package in the Pokeno Village Estate. 

This package is not linked to any specific section in Pokeno but can be utilised on a range of sections currently available for sale up to the value of $285,000.00 (based on the overall package price). 

Versatile Pukekohe are able to offer you a variety of sections within the Pokeno Village Estate, we will negotiate on your behalf, to secure the section of your choice. 

Included in offer :- 
• Complete 100% project managed build 
• Final fixed price – no allowances 
• Driveway and lawns prepared 
• High quality “Mastercraft” kitchen including appliances 
• Carpet and vinyl planking / tiles 
• Heatpump 
• Building Consent 
• Professional colour consult 
• Health and safety 
• 10 year Registered Masterbuilders guarantee 
• 12 months maintenance and defects warranty 

Pokeno Village Estate

Excluded in offer (but can be included):- 

• Any retaining walls as may be required for a specific site 
• Decking - timber or concrete 
• Curtains and blinds 
• Fencing 

Should this plan not suit your requirements or lifestyle, at Versatile we have a number of other plan options, or we can complimentary custom design a home for you. 

Or you might like us to build this home on your own section. 

Please contact Bridget Sutton at Versatile, Pukekohe 

P: 09 238 0696 
M: 021 286 8345 
E: bsutton@versatile.co.nz 

Or visit our office at 222 Manukau Road, Pukekohe or our show home at 54 Hillpark Drive, Pokeno, Saturday or Sunday 11.30 – 4pm or at any other time by appointment

View more house and land packages

Cambridge – A Family Favourite $748,479

House - Family Range Mclaren

The best of Cambridge! 189m²

Number of bedrooms
4
Number of bathrooms
2
Number of Living Spaces
2
Carport or Garage Size
2

A beautiful family home minutes from the heart of Cambridge, you'll enjoy sun all day in your brand new home!

More

Porirua – Aotea From $1,200,000

House - Metro Range Parnell

Aotea 251m²

Number of bedrooms
4
Number of bathrooms
2
Number of Living Spaces
1
Carport or Garage Size
2

Versatile proudly offer the Parnell plan from our Metro range as a part of a house and land package in Aotea.



This package is not linked to any specific section in Aotea, but can be utilised on a range of sections currently available for sale up to the value of $400,000 (Based on the overall package price)



Features and Inclusions:

Complete 100% Project managed build Sealed exposed aggregate driveway and entry path Niagra decking for indoor/outdoor flow & living Landscaped section & hydro seeded lawns Custom made curtains, drapes & blinds High quality Kitchen fit out and appliances Carpet and tiled flooring Rockcote Integra cladding with feature ceder Professional decor & colour scheme throughout 10 year Registered Master Builders guarantee 12 months maintenance and defects warranty 20 week build time from placement of the RibRaft foundations

More