Timaru — The Whole Package in Pleasant Point!

Number of bedrooms
Bedrooms 3
Number of bathrooms
Bathrooms 2
Number of living spaces
Living spaces 1
Number of toilets
Toilets 2
Floor size:
126m²
Section size:
15000m²
Price
From $650,000

A stunning Karamu home and a large 1.5h section - what more could you want!

Call Eddie Skillander today:
P: 03 688 2090
M: 022 319 8203
E: eddie.skillander@versatile.co.nz

Clarkson Road, Pleasant Point
Get directions

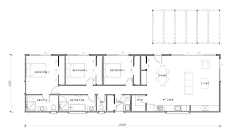
Behind the streamlined exterior of the Karamu sit three large bedrooms (with spacious wardrobes), a single-wall kitchen complete with walk-in pantry, and an abundance of smart storage solutions. The raked ceiling is a stand-out feature, helping to enhance the sense of space in this stylish home.

Package includes:
▪ Section purchase - 1.5 hectares (approx. – subject to survey).
▪ Existing shearing shed, 3 bay shed, 1000 litres water per day ▪ Complete NEW build of the Karamu house plan (pictured above) by Versatile
▪ Compacted shingle drive and parking bay (approx. 60sqm)
▪ Concrete patio area
▪ Curtains/drapes/blinds
▪ Septic system
▪ Power connection
▪ Building consent fee
▪ 10 year Master Builder’s guarantee
▪ Rural vehicle access
▪ 25,000 litre water storage tank, UV filter and water pump
▪ Log burner

Other plans you may be interested in

Cromwell – Lot 12, Prospectors Park $735,000

House - Metro Range Newmarket

You choose the plan! 172m²

Number of bedrooms
3
Number of bathrooms
2
Number of Living Spaces
1
Carport or Garage Size
2

This house and land package is waiting for you!

Located in picturesque Prospectors Park surrounded by stunning scenery,great outdoor activities and popular schools and amenities.



Cooking, eating and relaxation spaces are all clearly defined in this modified Newmarket plan from our stunning Metro Range. 

Excellent indoor/outdoor flow ensures you’ll always feel a connection to your surroundings on a 611m2 section. The icing on the cake is the mudroom – the perfect place to hang school bags, dump work gear and store shoes as you pass through from the large double garage. 




You choose the plan! Our house and land packages are not limited to a certain plan, we can work together to find the perfect plan for you!

More

Wellington – Lower Hutt $920,000

House - Metro Range Dominion

Dominion 177m²

Number of bedrooms
3
Number of bathrooms
2
Number of Living Spaces
1
Carport or Garage Size
1

Versatile proudly offer the Dominion Plan from our Metro range as a part of a house and land package in Lower Hutt.



This package is not linked to any specific section in Lower Hutt, but can be utilised on a range of sections currently available for sale up to the value of $400,000 (Based on the overall package price)



Features & Inclusions:
* Complete 100% Project managed build
* Sealed exposed aggregate driveway and entry path
* Niagra decking for indoor/outdoor flow & living
* Landscaped section & hydro seeded lawns
* Custom made curtains, drapes & blinds
* High quality Kitchen fit out and appliances
* Carpet and tiled flooring
* 6-Rib cladding and roofing
* Professional decor & colour scheme throughout
* 10 year Registered Master Builders guarantee
* 12 months maintenance and defects warranty
* 20 week build time from placement of the RibRaft foundations

More