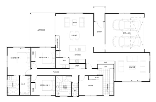
Features
- Raking ceilings in the open plan kitchen/dining areas
- Remote control operated skylights
- Underfloor heating throughout
- Large separate laundry with built in storage
Covered alfresco area: 24m2
Designed with ultimate functionality in mind, this generously-proportioned home features expansive living areas which enjoy uninterrupted views across the garden and alfresco area. With a built-in bar area, this home is an entertainers dream.
View other show homes
Christchurch – Rimu 215m²
- Number of bedrooms
- 4
- Number of bathrooms
- 2
- Number of Living Spaces
- 2
- Carport or Garage Size
- 2
The thoughtful layout of the Rimu means there’s excellent flow between rooms, with the stunning kitchen overseeing all living spaces. The large master bedroom and accompanying ensuite will keep mum and dad happy, while the generous double garage means there’s plenty of extra storage.
MoreWest Coast – Lambton 190m²
- Number of bedrooms
- 3
- Number of bathrooms
- 2
- Number of Living Spaces
- 2
- Carport or Garage Size
- 2
        Opening March/April 2020!
This modern family home is generously-proportioned despite being designed for smaller sites. The second living area would make a great media room, while the location of the master bedroom (away from the other bedrooms) offers plenty of privacy.
    
 
         
                             
         
         
         
         
         
         
         
         
         
         
         
                                 
                                 
                                 
                                 
                                 
                                 
                                 
                                 
                                 
                                 
                                 
            