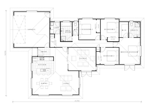
Christchurch — Rimu

Number of bedrooms
Bedrooms 4
Number of bathrooms
Bathrooms 2
Number of living spaces
Living spaces 2
Number of toilets
Toilets 2
Carport or Garage Size
Carport or Garage Size 2
Floor size:
215m²

Show Home Permanently Closed

Features

The thoughtful layout of the Rimu means there’s excellent flow between rooms, with the stunning kitchen overseeing all living spaces. The large master bedroom and accompanying ensuite will keep mum and dad happy, while the generous double garage means there’s plenty of extra storage. 

View more show homes

Ashburton – Tui 102m²

Number of bedrooms
3
Number of bathrooms
2
Number of Living Spaces
1

This popular three-bedroom design ticks all the boxes when it comes to both functionality and value for money, even managing to include an ensuite. Every inch of space is put to good use in the Tui, making it ideal for extended family, student accommodation or a home away from home during the holidays. 

More

Palmerston North – Tui 78m²

Number of bedrooms
3
Number of bathrooms
2
Number of Living Spaces
1

This popular three-bedroom design ticks all the boxes when it comes to both functionality and value for money. Every inch of space is put to good use in the Tui, making it ideal for extended family, student accommodation or a home away from home during the holidays.

More