Features
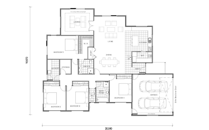
A custom designed home featuring four generous double bedrooms with plenty of storage for the family. At the centre of this home is the main living-dining area with a study nook, and a large kitchen with a walk-in pantry.
View more show homes
Ashburton – Tui 102m²
- Number of bedrooms
- 3
- Number of bathrooms
- 2
- Number of Living Spaces
- 1
This popular three-bedroom design ticks all the boxes when it comes to both functionality and value for money, even managing to include an ensuite. Every inch of space is put to good use in the Tui, making it ideal for extended family, student accommodation or a home away from home during the holidays.
MoreDunedin – Modified Weka 110m²
- Number of bedrooms
- 3
- Number of bathrooms
- 2
- Number of Living Spaces
- 1
This show home is based on our Weka plan from the Freedom range. The kitchen is the hub of this stylish home, while the adjoining living areas mean you can watch the kids while you cook up a storm. There’s plenty of room for entertaining, and a delightful master bedroom complete with ensuite and walk-in wardrobe.
More 
         
                             
         
         
         
         
         
         
         
         
         
         
         
                                 
                                 
                                 
                                 
                                 
                                 
                                 
                                 
                                 
                                 
                                 
            