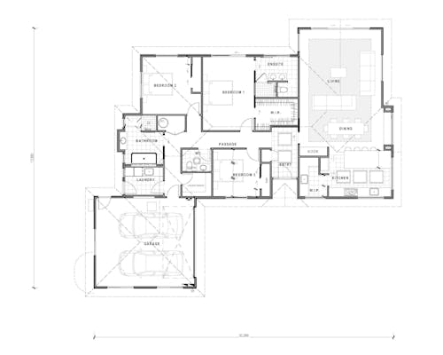
Dunedin — Hobson
- Number of bedrooms
- 3
- Number of bathrooms
- 2
- Number of living spaces
- 1
- Number of toilets
- 2
- Carport or Garage Size
- 2
- Floor size:
- 224m²
Open hours
- Sun
- 1:00pm - 4:00pm
For Sale / Investment Opportunity.
Designed for those who value life’s little luxuries, the Hobson features a master bedroom which is accompanied by a fabulous ensuite and a large walk-in robe complete with make-up nook. The charming window seat is the icing on the cake – the perfect spot to sit back and watch the world go by.
Call 0800 VERSATILE for more information.
 
                                 
                                 
                                 
                                 
                                 
                                 
                                 
                                 
                                 
                                 
                                 
                                 
                                 
                                 
                                 
                                 
                                 
                                 
                                This popular three-bedroom design ticks all the boxes when it comes to both functionality and value for money, even managing to include an ensuite. Every inch of space is put to good use in the Tui, making it ideal for extended family, student accommodation or a home away from home during the holidays.
MoreLife is easy in the Rangitata, a home where everything has been designed to flow. The light-filled kitchen is the centrepiece of the home, with a variety of open-plan and separate living areas offering ultimate versatility.
More