Cromwell — Kenepuru

Kenepuru
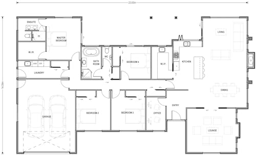
Number of bedrooms
Bedrooms 4
Number of bathrooms
Bathrooms 2
Number of offices
Offices 1
Number of living spaces
Living spaces 2
Number of toilets
Toilets 2
Carport or Garage Size
Carport or Garage Size 2
Floor size:
269m²
5 Parkburn Lane, Pisa Moorings, Cromwell

Open hours

Permanently Closed
closed
Features

They say the kitchen is the heart of the home, and that’s certainly true in the Kenepuru. From the large walk-in butler’s pantry to the stacked windows which allow you to serve directly outside, every element of this gourmet’s dream was designed to enhance the art of cooking. 

Virtual Tour

Use your mouse to explore this Versatile show home.

View other show homes

Palmerston North – Konini 67m²

Number of bedrooms
2
Number of bathrooms
1
Number of Living Spaces
1

Crisp, clean lines define the design of this modern home, which boasts two bedrooms, a highly-functional kitchen and plenty of storage. Large stacker-slider doors offer an easy connection to the world outside.

More

Timaru – Rangitata 260m²

Number of bedrooms
4
Number of bathrooms
2
Number of Living Spaces
2
Carport or Garage Size
2

Life is easy in the Rangitata, a home where everything has been designed to flow. The light-filled kitchen is the centrepiece of the home, with a variety of open-plan and separate living areas offering ultimate versatility.

More