Nelson — Awaroa

Number of bedrooms
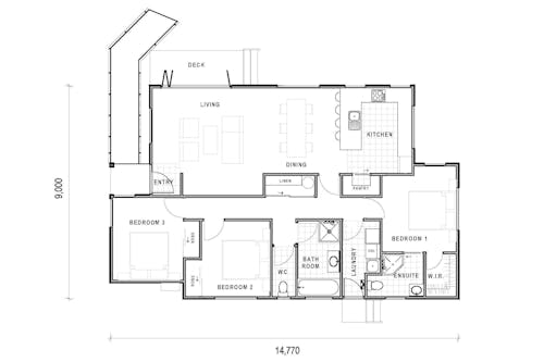
Bedrooms 3
Number of bathrooms
Bathrooms 2
Number of living spaces
Living spaces 1
Number of toilets
Toilets 2
Floor size:
116m²
69 Gladstone Road, Richmond

Open hours

Mon-Fri
8:00am - 5:30pm
Get directions
Features

When it comes to a family home or holiday accommodation, you’d be hard-pressed to find better value for money than the Awaroa. Simple yet efficient in design, the home enjoys excellent flow, with easy access to the sheltered outdoor entertaining spaces.

View more show homes

Christchurch – Rimu 215m²

Number of bedrooms
4
Number of bathrooms
2
Number of Living Spaces
2
Carport or Garage Size
2

The thoughtful layout of the Rimu means there’s excellent flow between rooms, with the stunning kitchen overseeing all living spaces. The large master bedroom and accompanying ensuite will keep mum and dad happy, while the generous double garage means there’s plenty of extra storage. 

More

Wellington – Custom 236m²

Number of bedrooms
4
Number of bathrooms
2
Number of Living Spaces
2
Carport or Garage Size
2

This bespoke home was designed with modern families in mind and raises the bar for new builds in the region.  This generous home offers four double bedrooms, a designer ensuite, chefs kitchen, large living area and separate formal lounge.  The alfresco area with exposed beams makes the outdoor living a year round entertaining feature.



Call 0800 VERSATILE for more information.

More