Palmerston North — Tui

Number of bedrooms
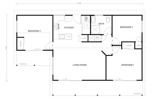
Bedrooms 3
Number of bathrooms
Bathrooms 2
Number of living spaces
Living spaces 1
Number of toilets
Toilets 2
Floor size:
78m²
948 Tremaine Avenue, Palmerston North

Open hours

Mon-Fri
8:00am - 4:30pm
Get directions
Features

This popular three-bedroom design ticks all the boxes when it comes to both functionality and value for money. Every inch of space is put to good use in the Tui, making it ideal for extended family, student accommodation or a home away from home during the holidays.

View more show homes

Palmerston North – Modified Smith 231m²

Number of bedrooms
4
Number of bathrooms
2
Number of Living Spaces
2
Carport or Garage Size
2

Open now!

Large decked area for alfresco dining Study nook Oversized garage with laundry area

A true family-sized home with large wardrobes and loads of storage. The large open-plan living area offers plenty of scope for any occasion or circumstance, while the separate media room means there’s always somewhere to escape to watch your favourite show.



This new show home is a modified version of our Smith plan - view details here[https://www.versatile.co.nz/homes/home-designs/family-range/smith/].

More

Ashburton – Tui 102m²

Number of bedrooms
3
Number of bathrooms
2
Number of Living Spaces
1

This popular three-bedroom design ticks all the boxes when it comes to both functionality and value for money, even managing to include an ensuite. Every inch of space is put to good use in the Tui, making it ideal for extended family, student accommodation or a home away from home during the holidays. 

More