Whangarei — Deans (Customised)

Number of bedrooms
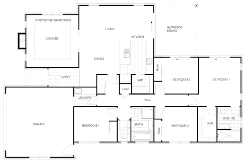
Bedrooms 4
Number of bathrooms
Bathrooms 2
Number of living spaces
Living spaces 2
Number of toilets
Toilets 2
Carport or Garage Size
Carport or Garage Size 2
Floor size:
201m²
30 Wainui Avenue, Tikipunga, Whangarei

Open hours

Thu-Sun
11:00am - 3:00pm
Get directions
Features
  • Fireplace in separate living room
  • Boxed ceiling

With four double bedrooms, this spacious home has been designed with ultimate functionality in mind, and features expansive living areas which enjoy uninterrupted views across the backyard and garden.

Virtual Tour

Use your mouse to explore this Versatile show home

View more show homes

Whangarei – Tui 59m²

Number of bedrooms
2
Number of bathrooms
1
Number of Living Spaces
1

This popular design ticks all the boxes when it comes to both functionality and value for money. Every inch of space is put to good use in the Tui, making it ideal for extended family, student accommodation or a home away from home during the holidays.

More

Palmerston North – Modified Smith 231m²

Number of bedrooms
4
Number of bathrooms
2
Number of Living Spaces
2
Carport or Garage Size
2

Open now!

Large decked area for alfresco dining Study nook Oversized garage with laundry area

A true family-sized home with large wardrobes and loads of storage. The large open-plan living area offers plenty of scope for any occasion or circumstance, while the separate media room means there’s always somewhere to escape to watch your favourite show.



This new show home is a modified version of our Smith plan - view details here[https://www.versatile.co.nz/homes/home-designs/family-range/smith/].

More