Whangarei — Pohutukawa

Pohutukawa
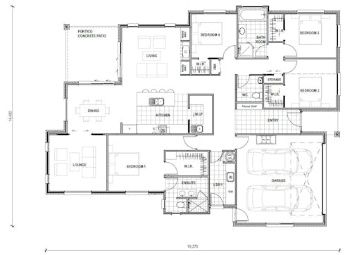
Number of bedrooms
Bedrooms 4
Number of bathrooms
Bathrooms 2
Number of living spaces
Living spaces 2
Number of toilets
Toilets 2
Carport or Garage Size
Carport or Garage Size 2
Floor size:
216m²
45 Lake Drive, Totara Parklands, Tikipunga

Open hours

Opening soon!
closed
Get directions
Features

Opening in February 29 2020!

This new show home is our Pohutukawa plan - view details here.

View more show homes

Pukekohe – Pohutukawa 217m²

Number of bedrooms
4
Number of bathrooms
2
Number of Living Spaces
2
Carport or Garage Size
2

The Pohutukawa is a home that loves a crowd; an entertainer’s dream come true! High ceilings enhance the sense of space inside, while a large alfresco room provides options year-round. The kids are also catered to, with teenagers sure to appreciate their own walk-in wardrobe and the handy study nook.

More

Dunedin – Modified Weka 110m²

Number of bedrooms
3
Number of bathrooms
2
Number of Living Spaces
1

This show home is based on our Weka plan from the Freedom range. The kitchen is the hub of this stylish home, while the adjoining living areas mean you can watch the kids while you cook up a storm. There’s plenty of room for entertaining, and a delightful master bedroom complete with ensuite and walk-in wardrobe.

More